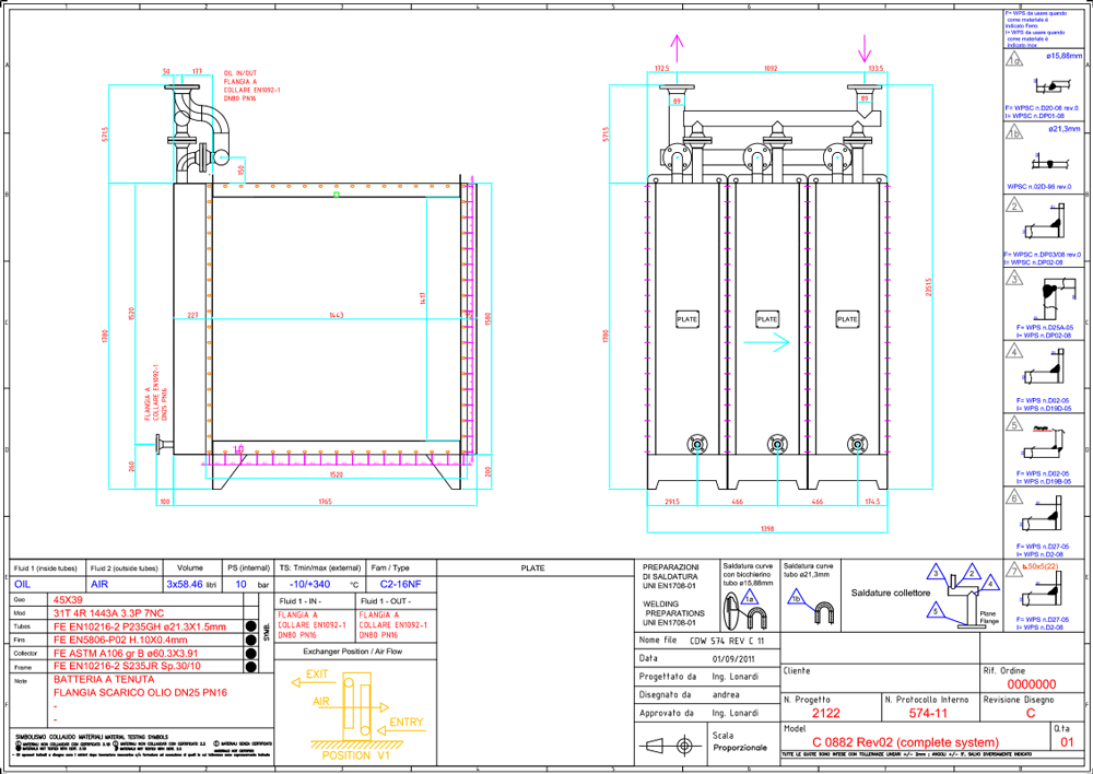
Sustitución bajo recomendación de ARTIC de calentador Líquido-Gas existente, compacto en una sola unidad que impedía su limpieza, por tres unidades en serie, desmontables que facilitan su accesibilidad y mantenimiento.
Condiciones de trabajo:
Lado frío: 8 kg/seg. de aire ambiente. Salto térmico: 30-235 °C
Lado Caliente: 28,3 kg/seg. aceite térmico. Salto térmico: 260-240 °C
Potencia Intercambiada: 1650 kW
Zona: Cantabria.